Plan Number:
 |
SD-4905-162
 |
| Description: *Standard Frame Construction
*Country Style
*Covered Entry Porch
*Main Level Laundry Room
*Large Family Room With Corner Fireplace
*Raised Eating Bar In Kitchen
*Kitchen Pantry
*2-Car Garage
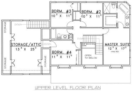
*Upper Level Open To Below
*Storage/Attic
*Upper Level Vaulted Master Suite
*Large Master Bathroom With Double Sinks, Walk-In Closet And Corner Tub |
| Bedrooms : |
4 |
| Baths : |
2.5 |
| Width : |
59' 6" |
| Depth : |
35' 11" |
| Main Ceiling Height: |
9 |
| Other Ceiling Height: |
9 |
| Roof Pitch: |
6 in 12 |
| Secondary Roof Pitch: |
None |
| Floors : |
2 |
| 1st Floor :
|
1045 sq. ft. |
| 2nd Floor :
|
1014 sq. ft. |
| Total Living :
|
2059 sq. ft. |
| Total Area :
|
2976 sq. ft. |
| Garage Bays: |
2 |
| Garage Type: |
Attached |
Foundation: Crawl Space |
Options: Reproducible / PDF, Right Reading Reverse, Mirror Reading Reverse, Color Rendering, Modifications, CAD Files |
| |

 |
|
|