Plan Number:
 |
SD-4984-162
 |
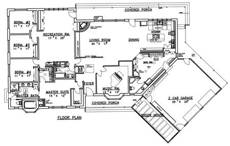
| Description: *Insulated Concrete Form Construction
*Covered Porches
*Great Room
*Fireplace
*Kitchen Island
*Music Room
*Recreation Room
*Wet Bar
*Large Master Suite With Fireplace
*Greenhouse
*Large Mud Room
*Dog Shower
*Two Car Garage
|
| Bedrooms : |
4 |
| Baths : |
3 |
| Width : |
105' 7" |
| Depth : |
68' 0" |
| Main Ceiling Height: |
10 |
| Other Ceiling Height: |
10 |
| Roof Pitch: |
6 in 12 |
| Secondary Roof Pitch: |
None |
| Floors : |
1 |
| 1st Floor :
|
3496 sq. ft. |
| Total Living :
|
3496 sq. ft. |
| Total Area :
|
4475 sq. ft. |
| Garage Bays: |
2 |
| Garage Type: |
Attached |
Foundation: Crawl Space |
Options: Reproducible / PDF, Right Reading Reverse, Mirror Reading Reverse, Color Rendering, Modifications, CAD Files |
| |

 |
|
|