Plan Number:
 |
SD-5018-162
 |
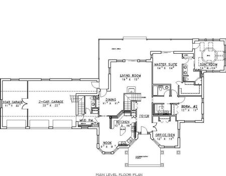
| Description: *Insulated Concrete Form Construction
*Large Living Room
*Large Kitchen
*Kitchen Island
*Breakfast Nook
*Large Master Suite
*Sun Room
*Office
*Mud Room
*Basement
*Cold Storage
*Patio
*Three Car Garage
|
| Bedrooms : |
3 |
| Baths : |
3.5 |
| Width : |
107' 6" |
| Depth : |
55' 0" |
| Main Ceiling Height: |
9 |
| Other Ceiling Height: |
9 |
| Roof Pitch: |
7 in 12 |
| Secondary Roof Pitch: |
None |
| Floors : |
2 |
| 1st Floor :
|
2359 sq. ft. |
| Total Living :
|
3364 sq. ft. |
| Total Area :
|
5094 sq. ft. |
| Garage Bays: |
3 |
| Garage Type: |
Attached |
Foundation: Partial Basement |
Options: Reproducible / PDF, Right Reading Reverse, Mirror Reading Reverse, Color Rendering, Modifications, CAD Files |
| |

 |
|
|