Plan Number:
 |
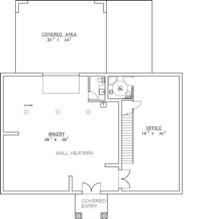
SD-5019-162
 |
| Description: *Insulated Concrete Form Construction
*Commercial Building
*Shop Area
*Originally Built as Winery
*Office
|
| Bedrooms : |
1 |
| Baths : |
1.5 |
| Width : |
60' 0" |
| Depth : |
72' 4" |
| Main Ceiling Height: |
8 |
| Roof Pitch: |
8 in 12 |
| Secondary Roof Pitch: |
None |
| Floors : |
2 |
| 1st Floor :
|
2400 sq. ft. |
| 2nd Floor :
|
840 sq. ft. |
| Total Living :
|
3240 sq. ft. |
| Total Area :
|
3240 sq. ft. |
| Garage Bays: |
0 |
| Garage Type: |
None |
Foundation: Slab |
Options: Reproducible / PDF, Right Reading Reverse, Mirror Reading Reverse, Color Rendering, Modifications, CAD Files |
| |

 |
|
|