Plan Number:
 |
SD-5068-162
 |
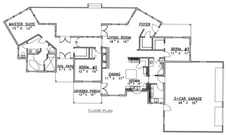
| Description: *Covered Front Porch
*One Level Home
*Full Master Bathroom With Spa Tub
*Fireplace In Living Room
*Dining Room
*3-Car Garage
*Island In Kitchen
*Walk-In Pantry In Kitchen
*Laundry Room
*Walk-In Closet In Bedrooms
|
| Bedrooms : |
3 |
| Baths : |
2 |
| Width : |
102' 11" |
| Depth : |
58' 9" |
| Main Ceiling Height: |
9 |
| Roof Pitch: |
6 in 12 |
| Secondary Roof Pitch: |
None |
| Floors : |
1 |
| 1st Floor :
|
2075 sq. ft. |
| Total Living :
|
2075 sq. ft. |
| Total Area :
|
2997 sq. ft. |
| Garage Bays: |
3 |
| Garage Type: |
Attached |
Foundation: Slab |
Options: Reproducible / PDF, Right Reading Reverse, Mirror Reading Reverse, Color Rendering, Modifications, CAD Files |
| |

 |
|
|