Plan Number:
 |
SD-5920-162
 |
| Description: *Insulated Concrete Form Home
*Modern Style
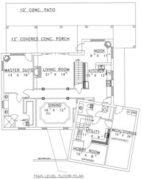
*Living Room Fireplace
*Corner Fireplace In Master Suite
*Fireplace In Nook
*Sunken Dining Room
*Unfinished Storage Area
*Unfinished Hobby Room
*Laundry Room
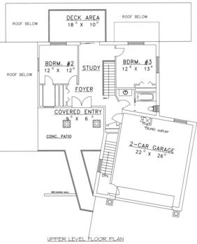
*2-Car Garage
*Dumbwaiter
*Covered Entry Porch
*Study
*Deck
|
| Bedrooms : |
3 |
| Baths : |
2.5 |
| Width : |
61' 8" |
| Depth : |
74' 10" |
| Main Ceiling Height: |
9 |
| Other Ceiling Height: |
9 |
| Roof Pitch: |
7 in 12 |
| Secondary Roof Pitch: |
None |
| Floors : |
2 |
| 1st Floor :
|
2356 sq. ft. |
| 2nd Floor :
|
954 sq. ft. |
| Total Living :
|
3310 sq. ft. |
| Total Area :
|
3942 sq. ft. |
| Garage Bays: |
2 |
| Garage Type: |
Attached |
Foundation: Walkout Basement |
Options: Reproducible / PDF, Right Reading Reverse, Mirror Reading Reverse, Color Rendering, Modifications, CAD Files |
| |

 |
|
|