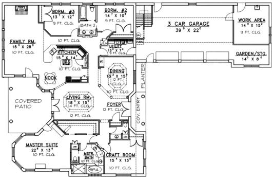
Plan Number:
 |
SD-6703-162
 |
| Description: *Insulated Concrete Form Construction
*Wood Stove In Family Room
*Laundry Room
*Kitchen Island
*Nook
*Craft Room
*Full Master Bathroom With Spa Tub
*Covered Patio
*3-Car Garage |
| Bedrooms : |
3 |
| Baths : |
2.5 |
| Width : |
108' 0" |
| Depth : |
70' 0" |
| Main Ceiling Height: |
10 |
| Other Ceiling Height: |
9 |
| Roof Pitch: |
8 in 12 |
| Secondary Roof Pitch: |
None |
| Floors : |
1 |
| 1st Floor :
|
3202 sq. ft. |
| Other Room: |
1288 sq. ft. |
| Total Living :
|
3202 sq. ft. |
| Total Area :
|
4490 sq. ft. |
| Garage Bays: |
3 |
| Garage Type: |
Attached |
Foundation: Crawl Space |
Options: Reproducible / PDF, Right Reading Reverse, Mirror Reading Reverse, Color Rendering, Modifications, CAD Files |
| |

 |
|
|