Plan Number:
 |
SD-7229-162
 |
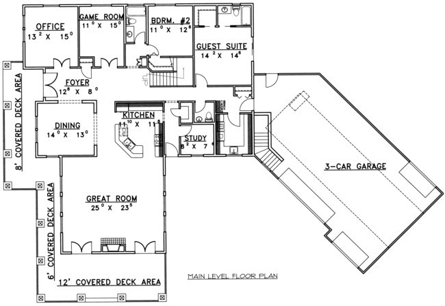
| Description: *Standard Frame Construction
*NorthWest Style Home
*Fireplace In Great Room
*Study
*Walk-In Kitchen Pantry
*Covered Deck Area
*3-Car Garage
*Game Room
*Office
*Sitting Area
|
| Bedrooms : |
4 |
| Baths : |
4.5 |
| Width : |
103' 5" |
| Depth : |
67' 5" |
| Main Ceiling Height: |
9 |
| Other Ceiling Height: |
10 |
| Roof Pitch: |
12 in 12 |
| Secondary Roof Pitch: |
3 in 12 |
| Floors : |
2 |
| 1st Floor :
|
2708 sq. ft. |
| 2nd Floor :
|
1305 sq. ft. |
| Other Room: |
398 sq. ft. |
| Total Living :
|
4013 sq. ft. |
| Total Area :
|
6184 sq. ft. |
| Garage Bays: |
3 |
| Garage Type: |
Attached |
Foundation: Crawl Space |
Options: Reproducible / PDF, Right Reading Reverse, Mirror Reading Reverse, Color Rendering, Modifications, CAD Files |
| |

 |
|
|