Plan Number:
 |
SD-7230-162
 |
| Description: THIRD FLOOR:
LOWER FLOOR/BASEMENT:
TOTAL FINISHED LIVING AREA:
TOTAL LIVING AREA W/ BRICK:
TOTAL AREA UNDER ROOF:
UNFINISHED LIVING AREA:
UNDESIGNED BONUS/FUTURE:
BASEMENT:
GARAGE ATTIC:
(screen porches, etc.);
GARAGE/CARPORT SQ. FT.:
NUMBER OF BEDROOMS:
(included rooms that could function
as bedrooms in accordance with
codes, as well as those marked
specifically "Bedroom");
NUMBER OF BATHROOMS:
EXTERIOR FINISH:
(brick, stucco, shake, lap siding, etc);
DESIGN HIGHLIGHTS
(3-4 sentences that would describe and market your plan:
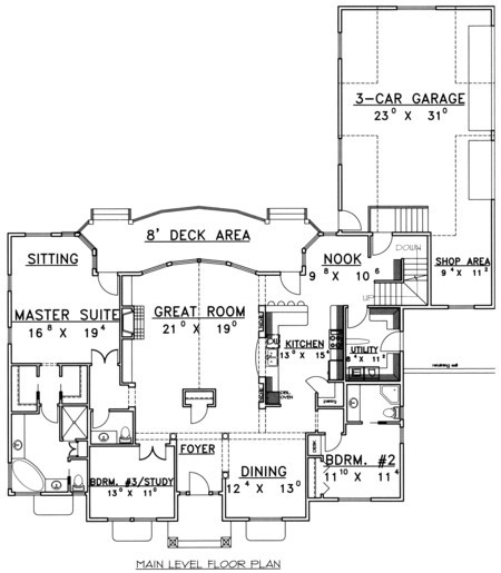
*Standard Frame Construction
*Modern Style Home
*Study
*Sitting Area In Master Suite
*Fireplace In Great Room
*Eating Bar, Walk-In Pantry And Nook In Kitchen
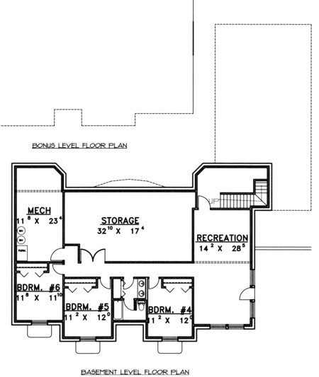
*Storage Area
*Recreation Room
*Bonus Room
*3-Car Garage
|
| Bedrooms : |
6 |
| Baths : |
3.5 |
| Width : |
74' 3" |
| Depth : |
78' 6" |
| Main Ceiling Height: |
9 |
| Other Ceiling Height: |
9 |
| Roof Pitch: |
9 in 12 |
| Secondary Roof Pitch: |
10 in 12 |
| Floors : |
2 |
| 1st Floor :
|
2426 sq. ft. |
| Other Room: |
2403 sq. ft. |
| Total Living :
|
2426 sq. ft. |
| Total Area :
|
6288 sq. ft. |
| Garage Bays: |
3 |
| Garage Type: |
Attached |
Foundation: Standard Basement |
Options: Reproducible / PDF, Right Reading Reverse, Mirror Reading Reverse, Color Rendering, Modifications, Handicapped Accesable |
| |

 |
|
|