Plan Number:
 |
SD-7364-162
 |
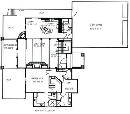
| Description: STANDARD FRAME,2 MASTER SUITES, 3 CAR GARAGE, RECREATION ROOM,GUEST SUITE, STORAGE,COVERED PORCH |
| Bedrooms : |
3 |
| Baths : |
3.5 |
| Width : |
80' 4" |
| Depth : |
77' 2" |
| Main Ceiling Height: |
10 |
| Other Ceiling Height: |
11 |
| Roof Pitch: |
8 in 12 |
| Secondary Roof Pitch: |
None |
| Floors : |
2 |
| 1st Floor :
|
2282 sq. ft. |
| 2nd Floor :
|
262 sq. ft. |
| Other Room: |
2282 sq. ft. |
| Total Living :
|
4826 sq. ft. |
| Total Area :
|
6189 sq. ft. |
| Garage Bays: |
3 |
| Garage Type: |
Attached |
Foundation: Standard Basement |
Options: Reproducible / PDF, Right Reading Reverse, Mirror Reading Reverse, Color Rendering, Modifications, CAD Files |
| |

 |
|
|