Plan Number:
 |
SD-7543-162
 |
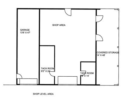
| Description: STANDARD FRAME, COVERED STORAGE, TACK ROOM, GARAGE STORAGE, SHOP AREA |
| Width : |
64' 0" |
| Depth : |
48' 0" |
| Main Ceiling Height: |
10 |
| Roof Pitch: |
3 in 12 |
| 1st Floor :
|
2400 sq. ft. |
| Total Usable Space :
|
3072 sq. ft. |
| Total Area :
|
3072 sq. ft. |
| Garage Bays: |
2 |
| Garage Type: |
Parking/Workshop |
Foundation: Slab |
Options: Reproducible / PDF, Right Reading Reverse, Mirror Reading Reverse |
| |

 |
|
|