Plan Number:
 |
SD-7547-162
 |
| Description: STANDARD FRAME,STUDIO APARTMENT, 1 BEDROOM,KITCHEN, BALCONY,BATH |
| Width : |
40' 0" |
| Depth : |
60' 0" |
| Main Ceiling Height: |
10 |
| Roof Pitch: |
7 in 12 |
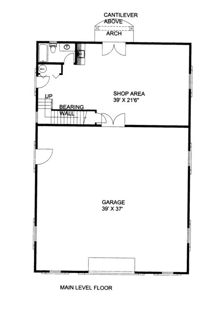
| 1st Floor :
|
2400 sq. ft. |
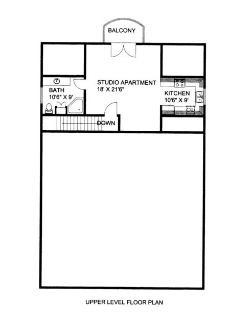
| 2nd Floor :
|
628 sq. ft. |
| Total Usable Space :
|
3028 sq. ft. |
| Total Area :
|
3028 sq. ft. |
| Garage Bays: |
1 |
| Garage Type: |
Parking/Apartment |
Foundation: Slab |
Options: Reproducible / PDF, Right Reading Reverse, Mirror Reading Reverse |
| |

 |
|
|