Plan Number:
 |
SD-7555-162
 |
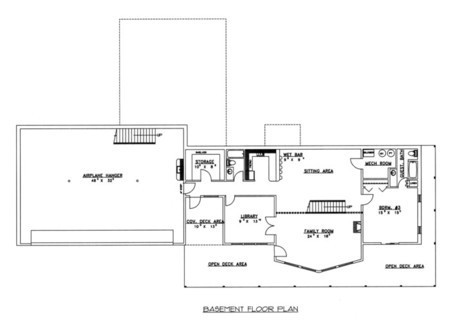
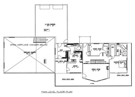
| Description: 2 CAR GARAGE,AIRPLANE HANGAR,STORAGE,LARGE GREAT ROOM,WALK IN CLOSET |
| Bedrooms : |
3 |
| Baths : |
4 |
| Width : |
114' 0" |
| Depth : |
72' 0" |
| Main Ceiling Height: |
13 |
| Other Ceiling Height: |
9 |
| Roof Pitch: |
10 in 12 |
| Secondary Roof Pitch: |
None |
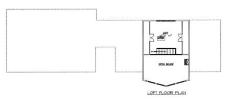
| Floors : |
2 |
| 1st Floor :
|
1885 sq. ft. |
| 2nd Floor :
|
330 sq. ft. |
| Other Room: |
1885 sq. ft. |
| Total Living :
|
4100 sq. ft. |
| Total Area :
|
6677 sq. ft. |
| Garage Bays: |
2 |
| Garage Type: |
Attached |
Foundation: Standard Basement |
Options: Reproducible / PDF, Right Reading Reverse, Mirror Reading Reverse, Color Rendering, Modifications, CAD Files |
| |

 |
|
|