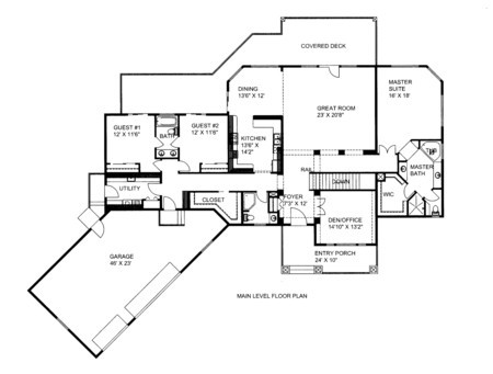
Plan Number:
 |
SD-7563-162
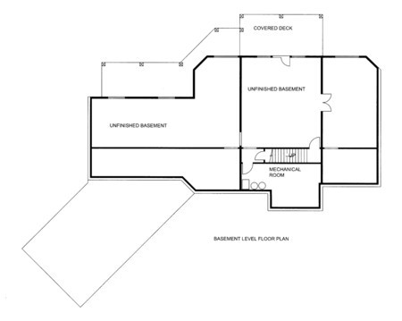
 |
| Description: STANDARD FRAME,DECK AREA, FOYER, UNFININSHEDE BASEMENT,MECH ROOM,GREAT ROOM,COVERED DECK |
| Bedrooms : |
3 |
| Baths : |
2.5 |
| Width : |
103' 8" |
| Depth : |
73' 1" |
| Main Ceiling Height: |
8 |
| Roof Pitch: |
7 in 12 |
| Secondary Roof Pitch: |
None |
| Floors : |
2 |
| 1st Floor :
|
2933 sq. ft. |
| 2nd Floor :
|
2933 sq. ft. |
| Total Living :
|
5866 sq. ft. |
| Total Area :
|
6812 sq. ft. |
| Garage Bays: |
3 |
| Garage Type: |
Attached |
Foundation: Slab |
Options: Reproducible / PDF, Right Reading Reverse, Mirror Reading Reverse, Color Rendering, Modifications, CAD Files |
| |

 |
|
|