Plan Number:
 |
SD-7567-162
 |
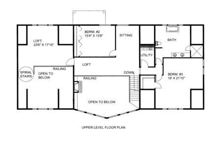
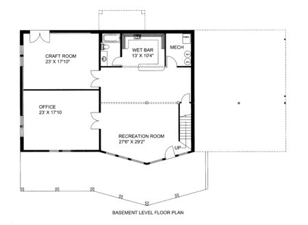
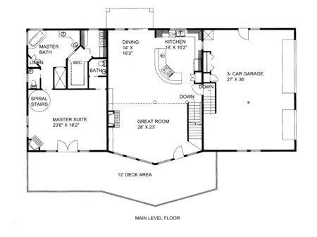
| Description: STANDARD FRAME,3 CAR GARAGE,GREAT ROOM,LOFT, OPEN TO BELOW LOFT, SITTING AREA, WET BAR, RECREATION AREA, CRAFT ROOM |
| Bedrooms : |
3 |
| Baths : |
2.5 |
| Width : |
80' 6" |
| Depth : |
53' 5" |
| Main Ceiling Height: |
9 |
| Other Ceiling Height: |
13 |
| Roof Pitch: |
8 in 12 |
| Secondary Roof Pitch: |
None |
| Floors : |
2 |
| 1st Floor :
|
2019 sq. ft. |
| 2nd Floor :
|
1857 sq. ft. |
| Other Room: |
2019 sq. ft. |
| Total Living :
|
5895 sq. ft. |
| Total Area :
|
6913 sq. ft. |
| Garage Bays: |
3 |
| Garage Type: |
Attached |
Foundation: Slab, Standard Basement |
Options: Reproducible / PDF, Right Reading Reverse, Mirror Reading Reverse, Color Rendering, Modifications, CAD Files |
| |

 |
|
|