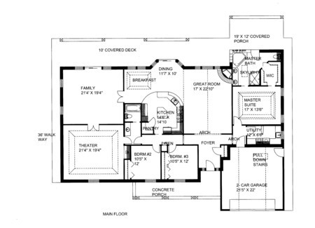
Plan Number:
 |
SD-7787-162
 |
| Description: STANDARD FRAME,
THEATER,FAMILY ROOM
2 CAR GARAGE
FOYER
COVERED PORCH AREA
|
| Bedrooms : |
3 |
| Baths : |
2 |
| Width : |
79' 0" |
| Depth : |
69' 0" |
| Main Ceiling Height: |
13 |
| Other Ceiling Height: |
10 |
| Roof Pitch: |
6 in 12 |
| Secondary Roof Pitch: |
None |
| Floors : |
2 |
| 1st Floor :
|
3089 sq. ft. |
| 2nd Floor :
|
214 sq. ft. |
| Total Living :
|
3303 sq. ft. |
| Total Area :
|
3790 sq. ft. |
| Garage Bays: |
2 |
| Garage Type: |
Attached |
Foundation: Slab |
Options: Reproducible / PDF, Right Reading Reverse, Mirror Reading Reverse, Color Rendering, Modifications, CAD Files |
| |

 |
|
|