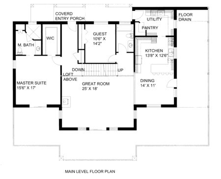
Plan Number:
 |
SD-7792-162
 |
| Description: INSULATED CONCRETE FORMS
UNFINISHED BASEMENT
GREAT ROOM
COVERED ENTRY
MASTER SUITE ON MAIN FLOOR, GUEST ROOM
UNFINISHED ATTIC
LOFT
|
| Bedrooms : |
2 |
| Baths : |
3 |
| Width : |
59' 0" |
| Depth : |
43' 0" |
| Main Ceiling Height: |
9 |
| Other Ceiling Height: |
9 |
| Roof Pitch: |
9 in 12 |
| Secondary Roof Pitch: |
10 in 12 |
| Floors : |
2 |
| 1st Floor :
|
2004 sq. ft. |
| Other Room: |
1131 sq. ft. |
| Total Living :
|
3125 sq. ft. |
| Total Area :
|
5139 sq. ft. |
| Garage Bays: |
0 |
| Garage Type: |
None |
Foundation: Standard Basement |
Options: Reproducible / PDF, Right Reading Reverse, Mirror Reading Reverse, Color Rendering, Modifications, CAD Files |
| |

 |
|
|