Plan Number:
 |
SD-7816-162
 |
| Description: STANDARD FRAME
3 CAR GARAGE, GREAT ROOM
THEATER, EXERCISE ROOM, LIBRARY
COVERED PORCH, FIREPLACE, PARLOR
NOOK,OPEN DECK AREA, BASEMENT HAS KITCHEN/LIVING
|
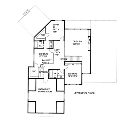
| Bedrooms : |
5 |
| Baths : |
5 |
| Width : |
70' 0" |
| Depth : |
55' 0" |
| Main Ceiling Height: |
9 |
| Other Ceiling Height: |
9 |
| Roof Pitch: |
9 in 12 |
| Secondary Roof Pitch: |
None |
| Floors : |
2 |
| 1st Floor :
|
2308 sq. ft. |
| 2nd Floor :
|
1091 sq. ft. |
| Other Room: |
2308 sq. ft. |
| Total Living :
|
5707 sq. ft. |
| Total Area :
|
7033 sq. ft. |
| Garage Bays: |
3 |
| Garage Type: |
Attached |
Foundation: Standard Basement |
Options: Reproducible / PDF, Right Reading Reverse, Mirror Reading Reverse, Color Rendering, Modifications, CAD Files |
| |

 |
|
|