Plan Number:
 |
SD-0391-67
 |
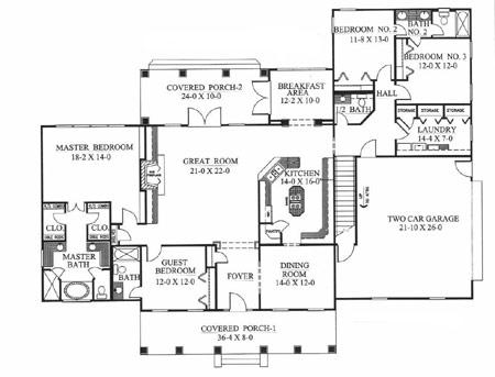
| Description: Beautiful traditional home featuring spacious floor plan. |
| Bedrooms : |
4 |
| Baths : |
3.5 |
| Width : |
80' 0" |
| Depth : |
63' 0" |
| Main Ceiling Height: |
9 |
| Roof Pitch: |
9 in 12 |
| Secondary Roof Pitch: |
None |
| Floors : |
1 |
| 1st Floor :
|
2669 sq. ft. |
| Total Living :
|
2669 sq. ft. |
| Total Area :
|
3772 sq. ft. |
| Garage Bays: |
2 |
| Garage Type: |
Attached |
Foundation: Slab, Crawl Space, Standard Basement |
Options: Reproducible / PDF, Right Reading Reverse, Mirror Reading Reverse, Modifications |
| |

 |
|
|